Budżet obywatelski
Bliżej rewitalizacji skweru przy ul. Mickiewicza (obok stawku)

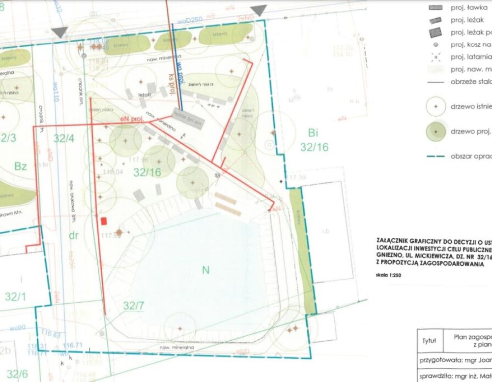
To będzie realizacja jednego ze zwycięskich projektów ubiegłorocznej edycji Budżetu Obywatelskiego Miasta Gniezna. Bardzo zaniedbany skwer mieszczący się nad stawkiem przy ul. Mickiewicza – przejdzie metamorfozę, a to dzięki planowanej tężni solankowej, za której powstaniem zagłosowało w zabawie aż 4432 gnieźnian.
Królewska tężnia solankowa – bo tak nazywa się zwycięski projekt, będzie pierwszą tego typu konstrukcją w Gnieźnie. Swoją minitężnię ma już od kilku lat Września, niebawem będzie mieć też Czerniejewo. Konstrukcja stanie w miejscu dzisiejszego skweru przy ul. Mickiewicza i taka inwestycja będzie mieć też godną oprawę. Cały skwer bowiem, zostanie zrewitalizowany. Tężnia składać się będzie z 2 równoległych elementów połączonych drewnianymi belkami, które będą tworzyć całość. Konstrukcja zbudowana będzie w całości z drewna i obłożona gałęziami tarniny, po których z góry będzie spływać solanka. Wokół tężni znajdą się leżaki, ławki, ławko-leżaki, kosze na śmieci, stojaki na rowery i lampy parkowe. Projekt wyceniany jest na ok. 640 tys. złotych i ma być zrealizowany w tym roku. Prezydent Miasta ma już przygotowany projekt decyzji o ustaleniu lokalizacji inwestycji celu publicznego. Z dokumentu wiemy też, jak będzie zagospodarowana przestrzeń.





