Tag:
Budżet Obywatelski Miasta Gniezna
Znamy wyniki Budżetu Obywatelskiego Miasta Gniezna. Mieszkańcy wybrali jeden projekt duży i trzy małe
Znamy już wyniki głosowania w kolejnej edycji Budżetu Obywatelskiego Miasta Gniezna. W tym roku mieszkańcy zadecydowali, że będą realizowane cztery projekty. Jeden w kategorii projektów dużych i trzy małe.
Mieszkańcy Gniezna oddali ponad 13 tysięcy głosów. Uważamy tę frekwencję za dobrą. Wybran…
Budżet obywatelski, ostatnia prosta! Znamy wyniki cząstkowe
Urząd Miejski w Gnieźnie opublikował listę projektów raz z oddanymi na nie głosami na dzień 23 września. Do końca głosowania w Budżecie Obywatelskim Miasta Gniezna zostało kilka dni. Tutaj wszystko może się jeszcze zmienić!
Zaprezentowane przez magistrat wyniki cząstkowe dotyczą głosowania dr…
Tężnię wybrali mieszkańcy w budżecie obywatelskim. Czas na jej powstanie
O tę inwestycję, która była jedną z najbardziej popularnych w ubiegłorocznym głosowaniu w Budżecie Obywatelskim Miasta Gniezna, dopytywali od miesięcy mieszkańcy. Rok powoli zmierza ku końcowi, a inwestycji ciągle nie było. Ale jest już ogłoszony przetarg i prace mogą zacząć się niebawem. Skwer pr…
Pierwsze głosy, oddane! Ruszyło głosowanie w budżecie obywatelskim
Do końca miesiąca każdy z nas może zagłosować na projekty przygotowane przez innych mieszkańców Gniezna. Budżet Obywatelski Miasta Gniezna to szansa na zmianę naszej okolicy i przyczynienie się do zmian miejsc, które są najbliżej nas.
Okrągły milion złotych przeznaczyło miasto na to, by to sami…
Zaprojektuj sobie miasto! Propozycje w budżecie obywatelskim 2026 będą czekać na wasze głosy
15 projektów mieszkańców znalazło się w finałowej edycji Budżetu Obywatelskiego Miasta Gniezna 2026! Urzędnicy przyjrzeli się wszystkim nadesłanym pomysłom mieszkańcom (było ich łącznie 23) i po weryfikacji formalnej przedstawili te z nich, które od 5 września będą czekać na głosy mieszkańców…
Milion złotych do waszej dyspozycji. Ruszył Budżet Obywatelski Miasta Gniezna
Jak Gniezno zmieniło się dzięki samym mieszkańcom i ich pomysłom – widzimy to na co dzień, korzystając z ich efektów. Wystarczy dobry pomysł, wskazanie miejsce jego realizacji, szacunkowy koszt i… pozostaje walka o głosy reszty mieszkańców. Tak działa budżet partycypacyjny. Właśnie ruszyła kolejna…
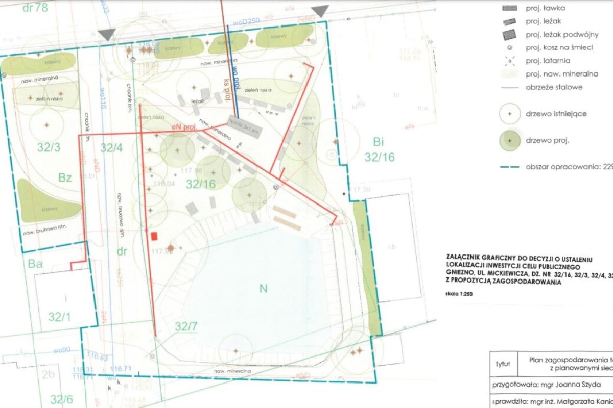
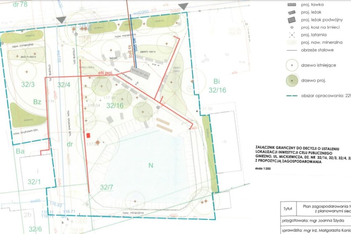
Bliżej rewitalizacji skweru przy ul. Mickiewicza (obok stawku)
To będzie realizacja jednego ze zwycięskich projektów ubiegłorocznej edycji Budżetu Obywatelskiego Miasta Gniezna. Bardzo zaniedbany skwer mieszczący się nad stawkiem przy ul. Mickiewicza – przejdzie metamorfozę, a to dzięki planowanej tężni solankowej, za której powstaniem zagłosowało w zabawie a…






